top of page
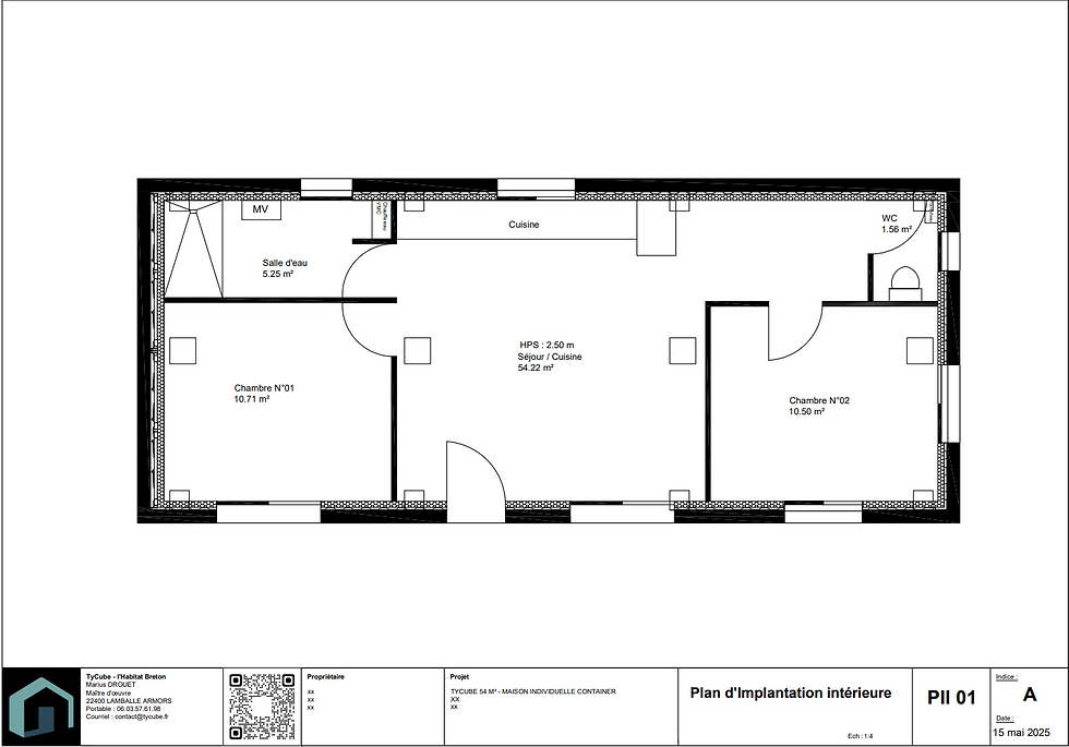
Plans de maisons container 55 m²
Découvrez nos plans de maisons container modernes et fonctionnels : modèles à toit plat, maisons cubiques de plain-pied ou à étage, avec 2 à 3 chambres, suite parentale, terrasse, garage ou même piscine. Chaque plan est pensé pour offrir une surface habitable optimisée et un aménagement intérieur confortable, adapté à vos besoins.

Type 01
bottom of page
